Propiedades en venta en Aloha Gardens, Nueva Andalucia

Encontradas 1 propiedad en venta en Aloha Gardens, Nueva Andalucia.

21
Aloha Gardens, Nueva Andalucia

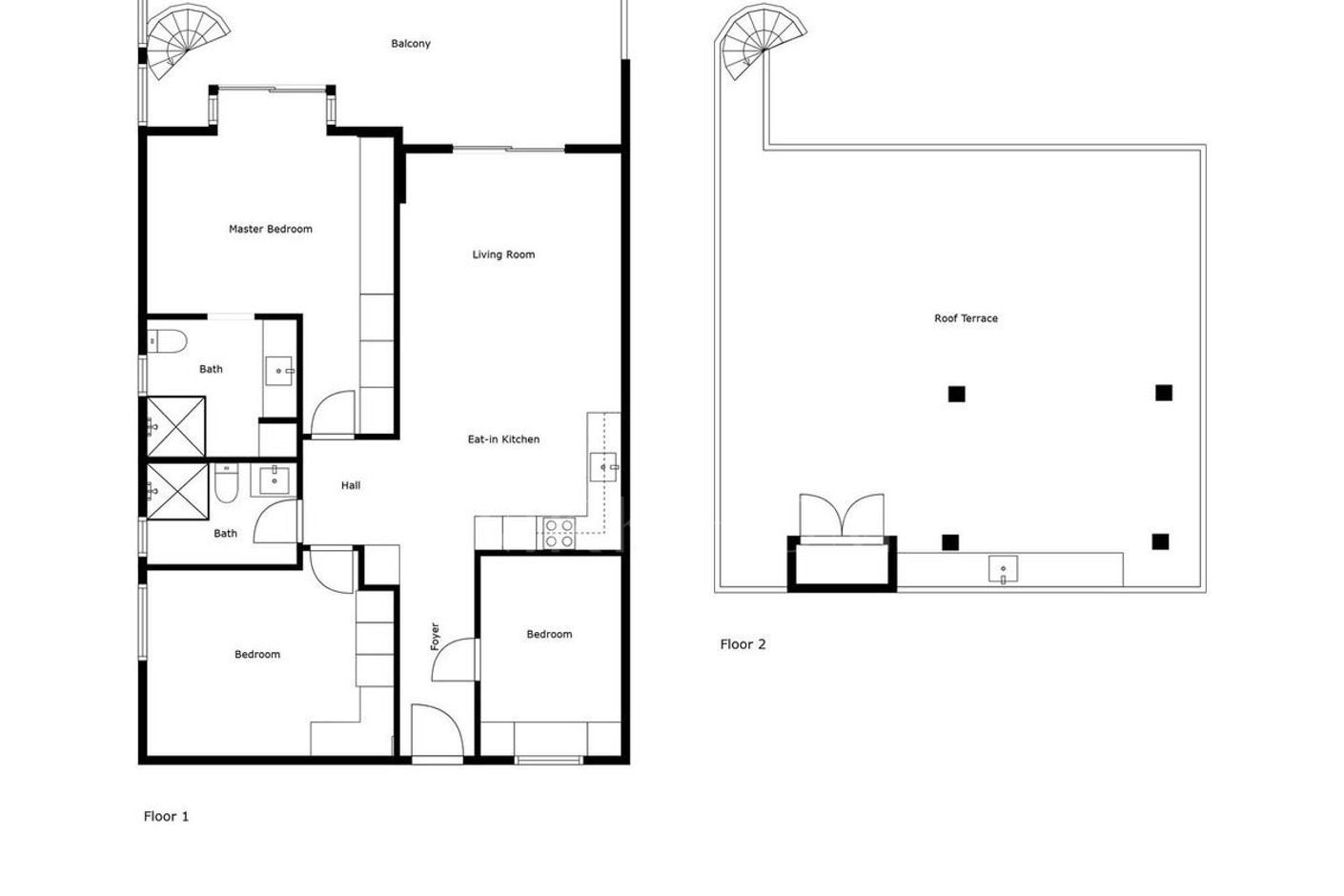
Ático dúplex en venta en Aloha Gardens

Turnkey duplex ático en venta en Aloha Gardens, Nueva Andalucía. Situado en el corazón de Aloha Gardens, una de las comunidades cerradas más deseables y...

770.000 €
  • 3 Camas
  • 2 Baños
  • 183 m² Construido
  • 54 m² Terraza