Elegante adosado de 4 dormitorios con vistas impresionantes en exclusiva promoción boutique en Estepona
- UH-01235P Referencia
- Pareado Tipo
- 4 Dormitorios
- 4 Baños
- 196 m² Interior
- 218 m² Construido
- 76 m² Terraza
- 164 m² Parcela
Ubicada en una selecta urbanización de solo 10 villas, esta magnífica residencia de 4 dormitorios y 4 baños se distribuye en tres niveles y disfruta de vistas panorámicas al mar, la montaña y el campo de golf. Una auténtica joya en la Costa del Sol, la propiedad ofrece privacidad y sofisticación en un entorno residencial tranquilo.
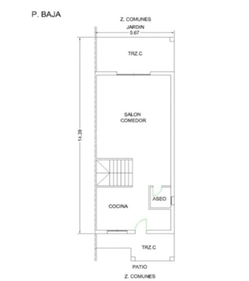
La inteligente distribución de la villa comienza con una luminosa y espaciosa planta principal que integra a la perfección una zona de estar y comedor de concepto abierto con una moderna cocina totalmente equipada. Las líneas limpias, el mobiliario elegante y los acabados de calidad confieren al espacio un aire contemporáneo. En este nivel también se encuentra un dormitorio de invitados y un baño completo, ideal para visitas o uso familiar.
En la planta superior, la amplia suite principal disfruta de acceso directo a una terraza privada, mientras que dos dormitorios adicionales comparten un baño familiar. El solárium en la azotea añade una dimensión extra de flexibilidad, con una soleada terraza, un aseo de invitados y una estancia independiente perfecta como despacho u oficina en casa.
La zona exterior ha sido diseñada para el disfrute sin esfuerzo: desde el jardín y la piscina privados hasta la terraza cubierta, ideal para comer al aire libre y recibir invitados. También se incluye una cochera para dos vehículos.
Situada en la zona oeste de Estepona, una de las áreas con mayor proyección para la vida de lujo, la propiedad se encuentra a solo 1,3 km de la playa y a pocos minutos del nuevo campo de golf Azata y del Hospital de Estepona. Supermercados, restaurantes y todos los servicios diarios están cerca, mientras que el centro de Estepona está a solo 5 minutos en coche. Marbella, Puerto Banús y Sotogrande se encuentran a menos de 25 minutos, y tanto el aeropuerto de Málaga como el de Gibraltar están a menos de una hora.
Esta elegante villa llave en mano ofrece una combinación inmejorable de confort, ubicación y vistas panorámicas — lista para entrar a vivir y disfrutar.
Todos los detalles de la propiedad
- Precio: 824.000 €
- Piscina: Privado
- Jardín: Privado
- Garaje: Privado
- Orientación SE
- A estrenar
- Aerotermia
- Aire acondicionado
- Armarios empotrados
- Barbacoa
- Cerca de la ciudad
- Cerca de playa / mar
- Cerca del golf
- Cerca del puerto
- Cocina equipada
- Cocina totalmente equipada
- Colegios cerca
- Cristal doble
- Piscina de agua salada
- Primera linea de golf
- Puertas de cristal
- Servicios cercanos
- Solarium
- Terraza cubierta
- Terraza descubierta
- Terraza privada
- Tiendas cerca
- Transporte cercano
- Vistas a la montaña
- Vistas al golf
- Vistas panorámicas
- Vistas parciales al mar

Propiedades similares
Villa/Adosado en Primera Línea de Playa con Acceso Directo al Mar – Urb. Bahía Dorada, Oeste de Estepona
Ubicada en la pintoresca comunidad de primera línea de playa de Bahía Dorada, a solo unos minutos al oeste de Estepona, esta extraordinaria vivienda ofrece...
- 5 Camas
- 4 Baños
- 306 m² Construido
- 400 m² Parcela
ADOSADO ESQUINERO CON PISCINA PRIVADA Y VISTAS ABIERTAS - OESTE DE ESTEPONA
Descubra el encanto de esta elegante villa de 4 dormitorios y 3 baños, situada en un exclusivo complejo boutique de tan solo 10 viviendas. Distribuida...
- 4 Camas
- 3 Baños
- 180,12 m² Construido
- 290,92 m² Parcela
Adosado en Primera Línea de Playa en Estepona Oeste - VISTAS AL MAR – Reformado y Amueblado
Esta vivienda adosada se encuentra en la codiciada urbanización Bermuda Beach, en la zona oeste de Estepona. Uno de sus mayores atractivos es su privilegiada...
- 3 Camas
- 2 Baños
- 180 m² Construido
- 56 m² Terraza