Dúplex en planta baja con piscina privada - 4 dormitorios - El Paraíso - Estepona Nueva Milla de Oro
- UH-02428P Referencia
- Duplex Planta Baja Tipo
- 4 Dormitorios
- 4 Baños
- 168 m² Interior
- 297 m² Construido
- 60 m² Terraza
Este impresionante dúplex en planta baja se encuentra en El Paraíso, Estepona Este, y destaca por su excelente ubicación, que combina tranquilidad y accesibilidad. Con 169 m² de superficie interior y 60 m² de terraza con piscina privada, esta propiedad nueva ofrece un entorno ideal para disfrutar de la vida en la Costa del Sol. Su proximidad a la playa, campos de golf y una variedad de servicios, como tiendas y restaurantes, la convierte en una opción atractiva para quienes buscan comodidad y calidad de vida.
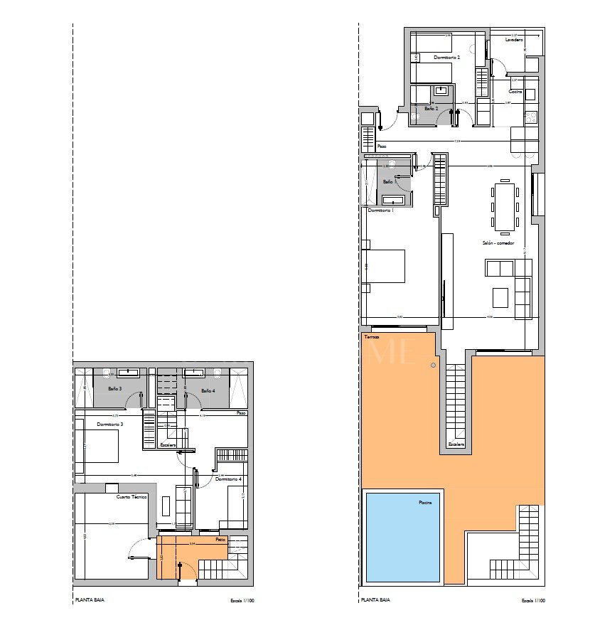
La planta principal cuenta con un amplio salón que se presenta como un espacio luminoso y acogedor, ideal para disfrutar en familia o con amigos, así como una cocina abierta con isla, totalmente equipada con todos los electrodomésticos necesarios y una práctica lavandería, facilitando las tareas diarias. Desde el salón se accede a una terraza privada que ofrece vistas abiertas a los entornos verdes urbanos y al jardín comunitario, perfecta para relajarse al aire libre. Además, la terraza incluye una piscina privada, aportando un toque lujoso y especial a la vivienda. En esta planta hay 2 dormitorios y 2 baños, uno de ellos en suite.
En la planta inferior se encuentra el dormitorio principal con vestidor y baño privado, un dormitorio adicional y una amplia sala polivalente con gran potencial y múltiples opciones de uso. Un patio en esta planta conecta con la terraza de la planta superior.
La propiedad dispone de cuatro dormitorios, todos con armarios empotrados, lo que garantiza un amplio espacio de almacenamiento. Los baños están diseñados con acabados modernos y funcionales, asegurando confort y privacidad para todos los residentes. Una plaza de aparcamiento subterránea está incluida en el precio.
Los residentes pueden disfrutar de instalaciones comunitarias como gimnasio, piscina, pista de pádel y club social para coworking, todo dentro de una urbanización cerrada que garantiza seguridad y tranquilidad.
La propiedad se entregará llave en mano tras una meticulosa reforma, lo que la convierte en una opción lista para entrar a vivir.
Todos los detalles de la propiedad
- Precio: 945.000 €
- Piscina: Privado
- Jardín: Comunitario
- Garaje: Comunitario
- Aire acondicionado
- Area de co-working
- Armarios empotrados
- Ascensor
- Cerca de playa / mar
- Cerca de restaurantes
- Cerca del golf
- Chimenea
- Cocina totalmente equipada
- Comunidad cerrada
- Cristal doble
- Entrada de seguridad
- Excelente estado
- Gimnasio
- Jardines maduros
- Persianas eléctricas
- Pista de tenis / pádel
- Puertas de cristal
- Recientemente renovado
- Servicio de Conserje
- Servicios cercanos
- Suelos porcelánicos
- Sótano
- Terraza cubierta
- Terraza descubierta
- Terraza privada
- Tiendas cerca
- Vestidor
- Vistas a la montaña
- Vistas al jardín
- Vistas urbanas

Propiedades similares
Fantástico ático dúplex de tres dormitorios situado en la prestigiosa urbanización cerrada frente a la playa de Menara Beach, Estepona
Luminoso y espacioso ático dúplex con orientación sur oeste situado en la prestigiosa urbanización cerrada frente a la playa de Menara Beach, Estepona. El complejo...
- 3 Camas
- 3 Baños
- 278 m² Construido
- 105 m² Terraza
Exclusivos apartamentos con vistas al mar en la prestigiosa Nueva Milla de Oro de Estepona
Esta exclusiva promoción redefine la vida costera moderna, combinando arquitectura contemporánea, servicios premium y una ubicación privilegiada frente al mar.Distribuciones de 2 a 4 dormitorios:...
- 3 Camas
- 3 Baños
- 281,46 m² Construido
- 115,16 m² Terraza
Exclusivos apartamentos con vistas al mar en la prestigiosa Nueva Milla de Oro de Estepona
Esta exclusiva promoción redefine la vida costera moderna, combinando arquitectura contemporánea, servicios premium y una ubicación privilegiada frente al mar.Distribuciones de 2 a 4 dormitorios:...
- 3 Camas
- 3 Baños
- 380,07 m² Construido
- 229,29 m² Terraza